Mozza, Canetra, Castel Sant'Angelo, Rieti, Lazio, Italy
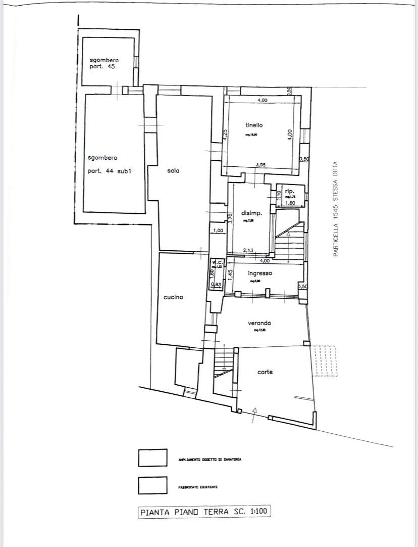
A Mozza, frazione del comune di Castel Sant’Angelo (RI), proponiamo in vendita una villetta con giardino immersa nella quiete. Il paese, circondato dal verde e a pochi km da Rieti, è facilmente raggiungibile e dista circa un’ora e mezza da Roma, rendendolo ideale per chi cerca un rifugio tranquillo lontano dal caos cittadino. La villetta, con parcheggio a circa 150 metri, si sviluppa su due livelli per un totale di circa 200 mq. Al piano terra troviamo un ingresso, disimpegno, bagno di servizio, cucina e un’ampia zona giorno con doppia sala, due ripostigli. Al primo piano si accede alla zona notte composta da cinque camere da letto, bagno e un terrazzo panoramico. Completa la proprietà un giardino riservato, in parte pavimentato, con barbecue e forno: perfetto per pranzi all’aperto e momenti di relax. Una soluzione ideale come casa vacanze, ma anche con ottime potenzialità per essere messa a reddito. Le condizioni generali sono molto buone, vanno completati alcuni lavori di ammodernamento in alcune stanze della casa, ma la proprietà si presenta pressochè abitabile da subito. Utenze dirette, possibilità di allaccio del metano.
Immergiti nell'ambiente dei nostri immobili. Prenota un tour personalizzato per osservare coi tuoi occhi cosa possiamo proporti.
Il nostro staff sarà lieto di rispondere in diretta a tutte le tue domande.
€ 99.000 € 105.000
Aggiunto: 28.11.2025
€ 23.500 € 29.000
Aggiunto: 30.10.2025
€ 85.000
Aggiunto: 18.11.2025
MONTELEONE SABINO (RI): cieloterra in centro storico
Utilizziamo i cookie per offrirti la migliore esperienza online e per attivare tutte le funzionalità del sito. Cliccando su "Accetto" aderisci alla la nostra politica sui cookie.
Quando visiti un sito Web, esso può archiviare o recuperare informazioni sul tuo browser, principalmente sotto forma di cookie. Abilita o disabilita i cookie del sito dal pannello sottostante. Alcuni cookie non possono essere disabilitati perchè necessari al funzionamento del sito stesso.